Description
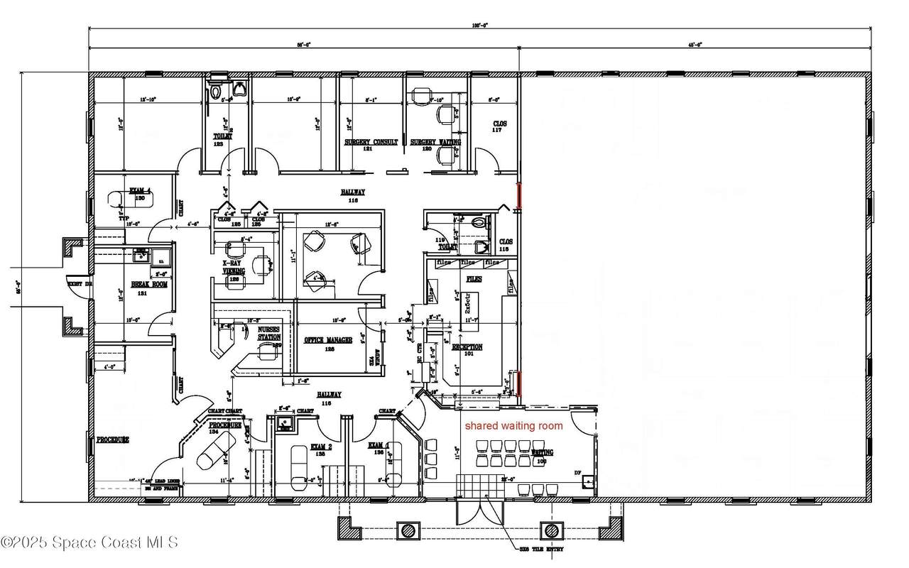
Beautifully Finished and Well Maintained 3,025 SF Medical Office with Waiting Room (shared), Reception, Nurses' Station, Five Exam Rooms, Large Procedure Room, X-Ray, Consult, Break Room with Exterior Entry Door, Office Manager and Two Doctors' Offices. Spyglass Plaza has Mediterranean style architecture buildings of CBS construction with IMPACT windows and barrel tile roofs. It is designed with plenty of parking for medical use and has two access drives at the east and west sides. Monument signage for this unit is available on the west sign. Spyglass Hill Road's corridor is almost exclusively medical and encompasses Viera's Spyglass Medical District. It is less than 2 miles from Viera Hospital, just minutes to I-95 @ Wickham Rd. and about 4 miles to US-1 at Viera Blvd. It is home to many physicians, medical associations, and professional offices, and adjacent to large residential areas.
-
0BEDS
-
N/AACRES
-
0BATHS
-
01/2 BATHS
-
3,025SQFT
-
$3$/SQFT
School Ratings & Info
Description
Beautifully Finished and Well Maintained 3,025 SF Medical Office with Waiting Room (shared), Reception, Nurses' Station, Five Exam Rooms, Large Procedure Room, X-Ray, Consult, Break Room with Exterior Entry Door, Office Manager and Two Doctors' Offices. Spyglass Plaza has Mediterranean style architecture buildings of CBS construction with IMPACT windows and barrel tile roofs. It is designed with plenty of parking for medical use and has two access drives at the east and west sides. Monument signage for this unit is available on the west sign. Spyglass Hill Road's corridor is almost exclusively medical and encompasses Viera's Spyglass Medical District. It is less than 2 miles from Viera Hospital, just minutes to I-95 @ Wickham Rd. and about 4 miles to US-1 at Viera Blvd. It is home to many physicians, medical associations, and professional offices, and adjacent to large residential areas.
© 2026 Space Coast Association of REALTORS®, Inc. The data relating to real estate for sale or lease on this web site comes in part from the Brevard County Broker Reciprocity Database. Real estate listings held by brokerage firms other than Boardwalk Realty LLC. are marked with the IDX logo and detailed information about them includes the name of the listing broker. Information is deemed reliable but is not guaranteed accurate by the MLS or Boardwalk Realty LLC..IDX information is provided exclusively for consumers' personal, non-commercial use and may not be used for any purpose other than to identify prospective properties consumers may be interested in purchasing. Data last updated: 2026-01-23T23:09:13.537.
