Description
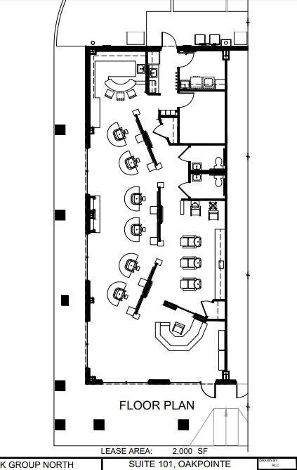
Excellent opportunity to lease a 2,000 SF hair salon in the heart of West Melbourne! Interior has a reception/waiting room area, 6 chairs, 3 hair washing stations, a color bar, 1 office, a laundry room, a break area and 2 restrooms. Corner unit with lots of sunlight. Drop ceiling and vinyl flooring throughout. 100% fire sprinklered. Utilities include City Water/Sewer & FPL Electric. The remaining FF&E can be purchased. Plaza has ample parking with 87 paved/striped/lighted common spaces. Property has easy access to the surrounding area via nearby Interstate 95, US 192 and US1. Close proximity to the Melbourne International Airport, Downtown Melbourne, Melbourne Square Mall and all of the other shopping, dining, employers and education that the area has to offer. Make this the future home for your business today!
-
0BEDS
-
2.3ACRES
-
0BATHS
-
01/2 BATHS
-
23,453SQFT
-
$0$/SQFT
School Ratings & Info
Description
Excellent opportunity to lease a 2,000 SF hair salon in the heart of West Melbourne! Interior has a reception/waiting room area, 6 chairs, 3 hair washing stations, a color bar, 1 office, a laundry room, a break area and 2 restrooms. Corner unit with lots of sunlight. Drop ceiling and vinyl flooring throughout. 100% fire sprinklered. Utilities include City Water/Sewer & FPL Electric. The remaining FF&E can be purchased. Plaza has ample parking with 87 paved/striped/lighted common spaces. Property has easy access to the surrounding area via nearby Interstate 95, US 192 and US1. Close proximity to the Melbourne International Airport, Downtown Melbourne, Melbourne Square Mall and all of the other shopping, dining, employers and education that the area has to offer. Make this the future home for your business today!
Related Properties
© 2026 Space Coast Association of REALTORS®, Inc. The data relating to real estate for sale or lease on this web site comes in part from the Brevard County Broker Reciprocity Database. Real estate listings held by brokerage firms other than Boardwalk Realty LLC. are marked with the IDX logo and detailed information about them includes the name of the listing broker. Information is deemed reliable but is not guaranteed accurate by the MLS or Boardwalk Realty LLC..IDX information is provided exclusively for consumers' personal, non-commercial use and may not be used for any purpose other than to identify prospective properties consumers may be interested in purchasing. Data last updated: 2026-05-09T16:09:07.037.
