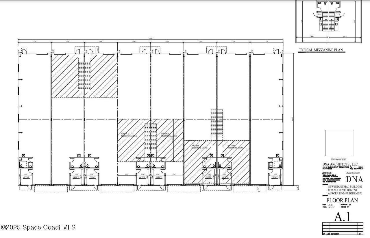
Description
A brand-new (2026) 20,000 SF HEAVY INDUSTRIAL flex building on Aurora Road in Melbourne. Constructed with durable steel, featuring 13' x 16' grade-level roll-up doors, impact-resistant storefront systems, and 24'-26'+ clear ceiling height throughout. Situated on a fully paved site with ample parking, the property offers excellent visibility and convenient access to I-95 and US-1, making it ideal for a wide range of industrial and commercial users. This is a true build-to-suit opportunity, allowing tenants to customize the space to their operational needs. Flexible configurations are available, with options to lease the full 20,000 SF or design a layout that supports manufacturing, distribution, trade operations, fabrication, storage, or specialty commercial uses.
-
0BEDS
-
1.53ACRES
-
0BATHS
-
01/2 BATHS
-
20,000SQFT
-
$2$/SQFT
School Ratings & Info
Description
A brand-new (2026) 20,000 SF HEAVY INDUSTRIAL flex building on Aurora Road in Melbourne. Constructed with durable steel, featuring 13' x 16' grade-level roll-up doors, impact-resistant storefront systems, and 24'-26'+ clear ceiling height throughout. Situated on a fully paved site with ample parking, the property offers excellent visibility and convenient access to I-95 and US-1, making it ideal for a wide range of industrial and commercial users. This is a true build-to-suit opportunity, allowing tenants to customize the space to their operational needs. Flexible configurations are available, with options to lease the full 20,000 SF or design a layout that supports manufacturing, distribution, trade operations, fabrication, storage, or specialty commercial uses.
© 2026 Space Coast Association of REALTORS®, Inc. The data relating to real estate for sale or lease on this web site comes in part from the Brevard County Broker Reciprocity Database. Real estate listings held by brokerage firms other than Boardwalk Realty LLC. are marked with the IDX logo and detailed information about them includes the name of the listing broker. Information is deemed reliable but is not guaranteed accurate by the MLS or Boardwalk Realty LLC..IDX information is provided exclusively for consumers' personal, non-commercial use and may not be used for any purpose other than to identify prospective properties consumers may be interested in purchasing. Data last updated: 2026-05-09T15:09:14.303.
