Description
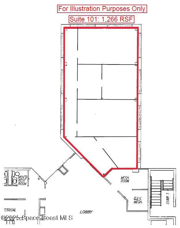
Suite 101 is 1,266 RSF. First floor unit with immediate access to parking lot & lobby. Interior includes a reception, 3 offices, conference room, and a break area. Drop ceiling throughout. Lots of windows/natural light. Building is 100% fire sprinklered. Ample parking with 168 paved/striped/lighted common parking spaces. Property is conveniently located in the heart of Cocoa Beach approximately halfway between Patrick Space Force Base and Port Canaveral. State Road 520 and State Road 528 are nearby, both of which provide immediate access to US1 and Interstate 95. Nearby employers include Kennedy Space Center, Cocoa Beach High School, and Cape Canaveral Hospital to name a few. Make this the future home for your business today!
-
0BEDS
-
3.32ACRES
-
0BATHS
-
01/2 BATHS
-
31,252SQFT
-
$0$/SQFT
School Ratings & Info
Description
Suite 101 is 1,266 RSF. First floor unit with immediate access to parking lot & lobby. Interior includes a reception, 3 offices, conference room, and a break area. Drop ceiling throughout. Lots of windows/natural light. Building is 100% fire sprinklered. Ample parking with 168 paved/striped/lighted common parking spaces. Property is conveniently located in the heart of Cocoa Beach approximately halfway between Patrick Space Force Base and Port Canaveral. State Road 520 and State Road 528 are nearby, both of which provide immediate access to US1 and Interstate 95. Nearby employers include Kennedy Space Center, Cocoa Beach High School, and Cape Canaveral Hospital to name a few. Make this the future home for your business today!
Related Properties
© 2026 Space Coast Association of REALTORS®, Inc. The data relating to real estate for sale or lease on this web site comes in part from the Brevard County Broker Reciprocity Database. Real estate listings held by brokerage firms other than Boardwalk Realty LLC. are marked with the IDX logo and detailed information about them includes the name of the listing broker. Information is deemed reliable but is not guaranteed accurate by the MLS or Boardwalk Realty LLC..IDX information is provided exclusively for consumers' personal, non-commercial use and may not be used for any purpose other than to identify prospective properties consumers may be interested in purchasing. Data last updated: 2026-01-20T18:09:05.693.
